DRAWING DATA
図面ダウンロード
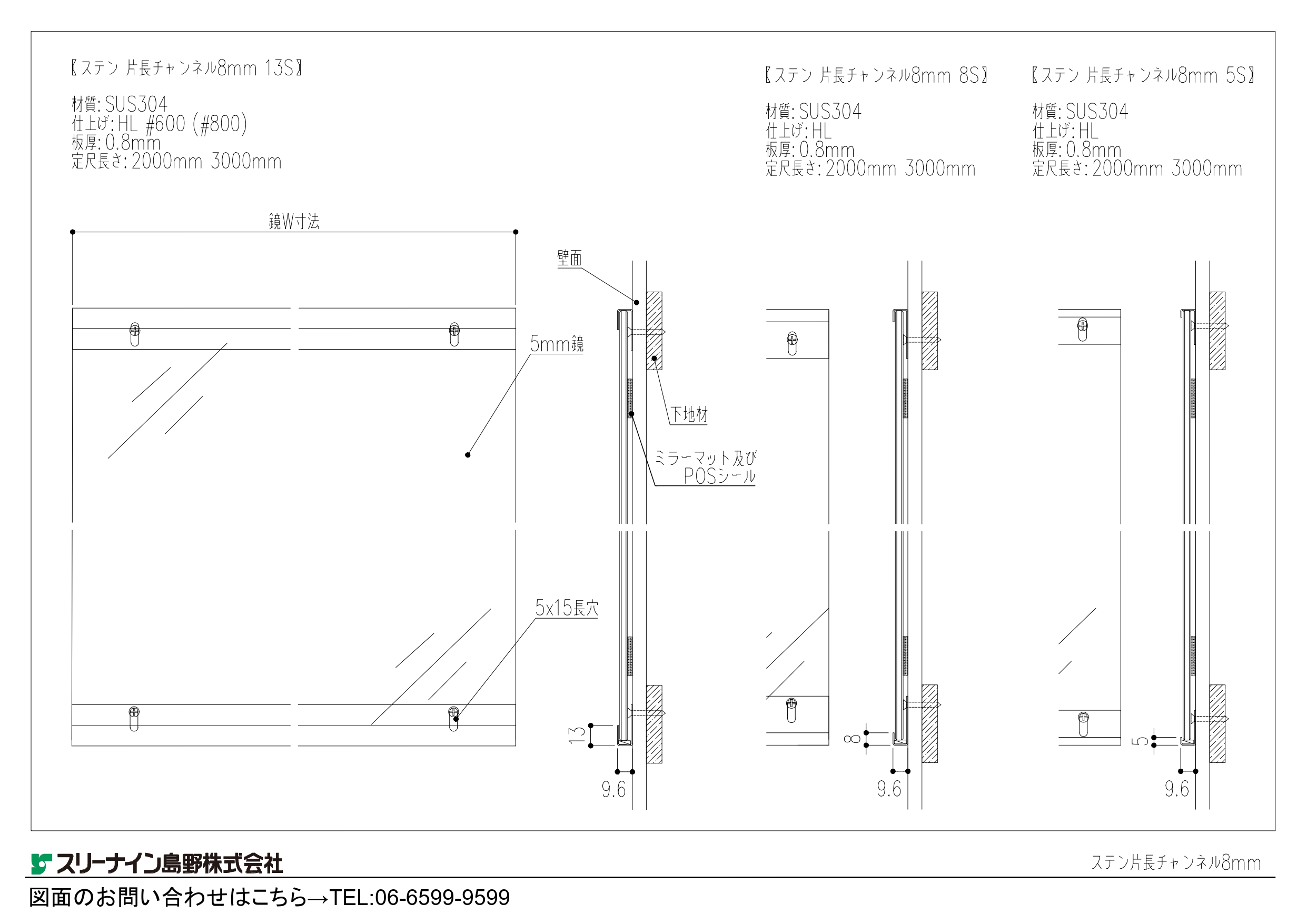
家電量販店 / 携帯ショップ / リサイクルショップミラー用のステン片長チャンネル8mm図面
家電量販店 / 携帯ショップ / リサイクルショップミラーを設計する際の施工図および図面の制作時にご活用ください。
CADデータだけでなくPDF形式でもダウンロードいただくことが可能です。

ミラーやガラスの受け部材として使用される片長チャンネルです。
SUS304材にヘアライン/#600/#800仕上げを施し、5mm厚の鏡に対応します。
見付けが5ミリ・8ミリ・13ミリの3タイプをラインナップし、用途や施工条件に応じた選定が可能です。
材質:SUS304
仕上げ:HL/#600/#800
板厚:0.8mm
定尺長さ:2000mm / 3000mm
家電量販店 / 携帯ショップ / リサイクルショップミラー用の図面をダウンロードいただく際の注意事項
- 図面データの内容は製品の改良等により、予告なく変更・改訂する場合があります。
- ダウンロードによって生じた損害について当社は一切の責任を負いかねます。
- 製品製造上の寸法公差がありますので、図面データ寸法が異なる場合があります。
- 図面データには簡略化している部分がございます。
- 図面の掲載内容は製品の在庫を保証するものではありません。
- 商品に関する限定された情報であることをあらかじめご了承ください。